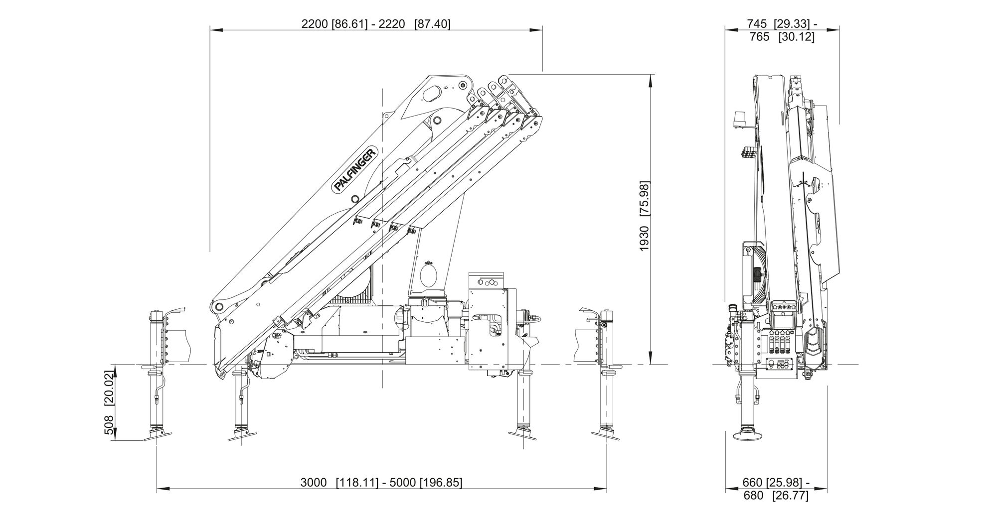
Кран-манипулятор Palfinger PK 7.501 SLD 5
Характеристики модификаций на кран-манипулятор Palfinger PK 7.501 SLD 5
Модель | Грузовой момент | Вылет стрелы | Грузоподъемность на мин. вылете стрелы | Грузоподъемность на макс. вылете стрелы | Угол поворота | Вес оборудования | Стоимость |
|---|---|---|---|---|---|---|---|
PK 7.501 SLD 5 | 6,8 тм | 5,3 м | 3300 кг | 1280 кг | 400 º | 780 кг | Узнать цену |
PK 7.501 SLD 5 A | 6,6 тм | 7,2 м | 3300 кг | 890 кг | 400 º | 860 кг | Узнать цену |
PK 7.501 SLD 5 B V1, V2 | 6,4 тм | 12,8 м | 3300 кг | 250 кг | 400 º | 930 кг | Узнать цену |
PK 7.501 SLD 5 C V1 | 6,4 тм | 12,7 м | 3300 кг | 250 кг | 400 º | 930 кг | Узнать цену |
Выше полезная нагрузка благодаря разумной легкой конструкции.
- Краткое время цикла нагрузки благодаря высокоскоростному выдвижному механизму
- Высокое удобство оператора благодаря радиоуправлению
- Максимальное использование рабочего диапазона благодаря HPSC
- Большая грузоподъемность благодаря A-HPLS.
Указанные вылеты касаются угла наклона стрелы 20° и поэтому не максимальны. При использовании механических удлинителей стрелы нагрузки, указанные на диаграммах, необходимо снизить на вес этих удлинителей.






